Photo - Cuisine

Condo à vendre, Montréal (Ahuntsic-Cartierville)

539 000 $

1100, Rue de Port-Royal E., app. 311

Montréal (Ahuntsic-Cartierville)

2 1 5
Photo Isabelle Naud

Isabelle Naud

Courtier immobilier résidentiel et commercial

514 576-1766

No Centris
#22570633
Type de propriété
Condo
Style de bâtiment
Détaché (Isolé)
Année de construction
2014
Date d'emménagement
30 jours

Caractéristiques

Zonage
Résidentiel
Système d'égouts
Municipal
Stationnement
Au garage (2)
Proximité
Transport en commun , École secondaire, École primaire, Piste cyclable, Parc-espace vert, Hôpital, Garderie/CPE, Cegep, Autoroute/Voie rapide, Autre
Garage
Tandem , Intégré, Chauffé
Équipement disponible
Thermopompe murale , Échangeur d'air
Énergie pour le chauffage
Électricité
Approvisionnement en eau
Municipalité
Services disponibles
Système de détection de fuite d'eau
Facilité d'accès
Ascenseur
Restrictions/Permissions
Animaux permis

Dimensions

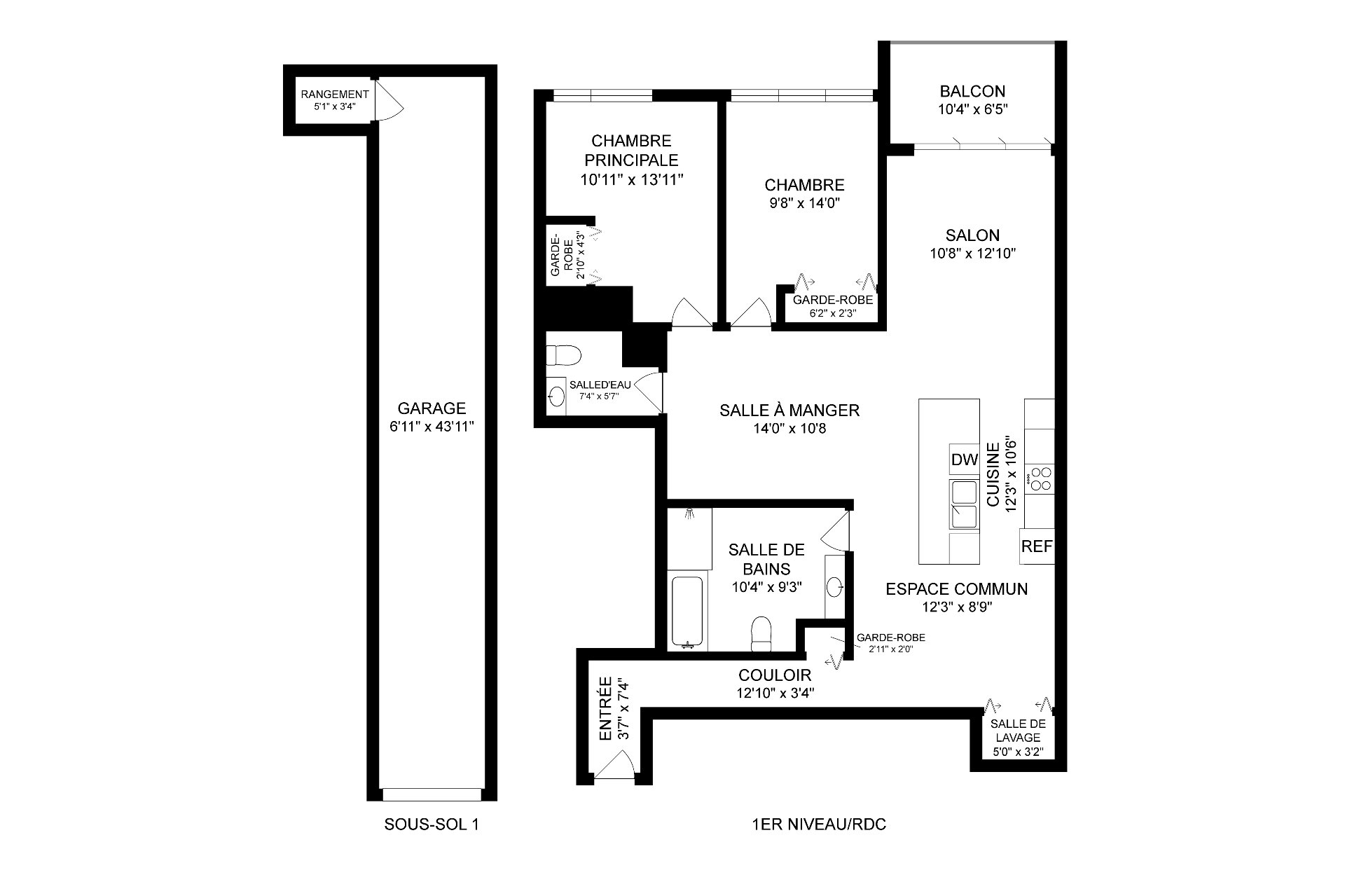
Superficie habitable
93.40 m²

Particularités des pièces

Pièces
5 pièces    |    2 chambre(s)    |    1 salle(s) de bain    |    1 salle(s) d'eau
Hall d'entrée
3ième étage
3.7 x 7.4 pi.
Revêtement : bois d'ingénierie
Salon
3ième étage
10.8 x 12.10 pi.
Revêtement : bois d'ingénierie
Cuisine
3ième étage
12.3 x 10.6 pi. - irrégulier
Revêtement : Céramique
Salle à manger
3ième étage
14 x 10.8 pi. - irrégulier
Revêtement : bois d'ingénierie
Chambre à coucher principale
3ième étage
10.11 x 13.11 pi. - irrégulier
Revêtement : bois d'ingénierie
Chambre à coucher
3ième étage
9.8 x 14 pi. - irrégulier
Revêtement : bois d'ingénierie
Salle de bains
3ième étage
10.4 x 9.3 pi. - irrégulier
Revêtement : Céramique
Salle d'eau
3ième étage
7.4 x 5.7 pi.
Revêtement : Céramique
Salle de lavage
3ième étage
5 x 3.2 pi. - irrégulier
Revêtement : bois d'ingénierie

Inclusions

Luminaires, habillages de fenêtres, thermopompe murale, hotte de cuisine, réfrigérateur, cuisinière, lave-vaisselle, laveuse, sécheuse.

Exclusions

Effets personnel des vendeurs, bibliothèque dans la salle à manger et le salon.

Addenda

Superbe condo moderne situé au 1100 rue de Port-Royal E., unité 311, au coeur du secteur recherché d'Ahuntsic. Cette lumineuse unité offre deux chambres à coucher et un espace de vie à aire ouverte réunissant la cuisine, la salle à manger et le salon, créant un environnement convivial et fonctionnel. La cuisine contemporaine se distingue par son grand îlot central, parfait pour cuisiner, recevoir ou partager des moments en famille et entre amis.

La propriété comprend une salle de bain complète avec douche indépendante et bain séparé, en plus d'une salle d'eau, offrant confort et praticité au quotidien. Le condo bénéficie également d'un balcon avec vue dégagée, idéal pour profiter de l'extérieur et des belles journées.

Un espace de stationnement au garage ainsi qu'un espace de rangement viennent compléter les nombreux avantages de cette propriété.

Idéalement situé à quelques pas de la Promenade Fleury, reconnue pour ses restaurants, cafés et commerces de quartier, ce condo profite d'un emplacement privilégié à proximité de tous les services essentiels. Vous serez également à distance de marche de plusieurs parcs, pistes cyclables, garderies, écoles et collèges réputés, en plus de bénéficier d'un accès facile au transport en commun.

Un emplacement de choix qui combine qualité de vie, confort et vie de quartier dynamique.

À propos de cette propriété

Superbe condo moderne situé au 1100 rue de Port-Royal E., unité 311, au coeur d'Ahuntsic. Cette lumineuse unité offre deux chambres à coucher et un espace de vie à aire ouverte réunissant cuisine, salle à manger et salon. La cuisine contemporaine se distingue par son grand îlot central. Salle de bain complète avec douche indépendante et bain séparé, en plus d'une salle d'eau. Balcon avec vue dégagée. Garage et espace de rangement inclus. Emplacement idéal à quelques pas de la Promenade Fleury, près des parcs, pistes cyclables, écoles, garderies, commerces et de tous les services.

Vente avec exclusion(s) de garantie légale - Voir courtier(s) inscripteur(s).
Demande d'information

Détails financiers

Annuel
Mensuel
Évaluation municipale (2026)
Bâtiment
463 700 $
Terrain
82 400 $
Taxes
Taxes scolaires (2026)
25 $ 2 $
Taxes municipales (2026)
3 356 $ 280 $
Dépenses et énergie
Frais de copropriété
5 616 $ 468 $

Calculateurs

  • Paiement mensuel
  • Taxe de mutation
  • Pouvoir d'achat

Montant des versements mensuels

 

**Le prix affiché n'inclut pas la prime d'assurance SCHL.

Taxe de mutation

 

** Uniquement à titre de référence, pour le montant exact, s'il vous plaît confirmer auprès de la ville ou la municipalité.

Pouvoir d'achat

 

**Le prix affiché n'inclut pas la prime d'assurance SCHL.

Vous aimez cette propriété?

Partagez-la!

Le lien a été copié dans votre presse-papier.

Nouvelles propriétés sur le marché qui pourraient vous intéresser

Vous cherchez la propriété de vos rêves? Appelez-moi pour en savoir davantage ou planifier une visite!

Nouvelle inscription
maison à vendre Montréal (Ahuntsic-Cartierville)
1 900 $ / Mois

1550 Av. Lecocq

Montréal (Ahuntsic-Cartierville)

  • 3 chambre(s)
  • 1 salle(s) de bain

Charmant appartement de trois chambres à coucher offrant de grands espaces lumineux et une atmosphère chaleureuse. Grâce à ses nombreuses fenêtres, l'unité profite d'une excellente luminosité naturelle tout au long de la journée. L'appartement comprend deux balcons, un à l'avant et un à l'arrière, dont celui à l'arrière donne sur la cour et constitue un espace idéal pour se détendre. Situé dans un secteur recherché, il est à proximité de tous les services, incluant épiceries, pharmacies, restaurants, Promenade Fleury et transport en commun à distance de marche. Le chauffage, l'électricité et l'eau chaude sont à la charge du locataire.

Consulter la propriété
Nouvelle inscription
maison à vendre Montréal (Ahuntsic-Cartierville)
525 000 $

8508 Av. André-Grasset

Montréal (Ahuntsic-Cartierville)

  • 2 chambre(s)
  • 1 salle(s) de bain

Découvrez ce condo lumineux situé au 8508 avenue André-Grasset, dans un secteur recherché. Offrant deux chambres à coucher, il propose une aire de vie à aire ouverte regroupant cuisine, salle à manger et salon. Profitez d'un grand balcon ensoleillé et d'un garage. À distance de marche des épiceries, pharmacies, cliniques et du métro Crémazie. À proximité du parc Frédéric-Back, du Complexe sportif Claude-Robillard, écoles, cafés et restaurants. Une belle opportunité!

Consulter la propriété
Nouvelle inscription
maison à vendre Montréal (Ahuntsic-Cartierville)
549 000 $

8560 Rue Raymond-Pelletier

Montréal (Ahuntsic-Cartierville)

  • 1 chambre(s)
  • 1 salle(s) de bain

Bienvenue dans ce superbe condo lumineux offrant un vaste espace de vie à aire ouverte et une grande terrasse privée, idéale pour se détendre ou recevoir. Une place de stationnement au garage complète ce cadre de vie pratique. L'immeuble propose des installations de qualité : piscine extérieure et gym entièrement équipé. Son emplacement est exceptionnel : à deux pas du Complexe Sportif Claude-Robillard, de parcs, écoles réputées et pistes cyclables. Transports en commun et Promenade Fleury à proximité avec ses restaurants, cafés et boutiques animés. Une opportunité rare!

Consulter la propriété
+

Vos préférences en matière de cookies

Les cookies sont utilisés pour optimiser le site web et collecter des statistiques d'utilisation.

Politique en matière de cookies